Ihre Position:Gesamtkatalog ZL-Rheinland 2025EntwässerungStrassenabläufe

Bedienschlüssel Weite 18/22mm
Schachtabdeckung Faserbeton 50KN 785/635
Schachtabd.SAKU Kl.B rd. LW600 m.L.
Schachtabd.SAKU Kl.B rd. LW600 o.L.
Bodenteil 1a m.KG-Anschluß
Bodenteil 1a m.Steckmuffe L
Beton-Schaft Teil 5b 300mm o.Tragnocken
Beton-Schaft Teil 5c 200mm o.Tragnocken
Beton-Schaft Teil 5d 570mm o.Tragnocken
Beton-Schaftkonus Teil 11
Beton-Zwischenteil 6a 300mm
Beton-Zwischenteil 6b 200mm
Beton-Auflagering Teil 10a 6cm
Beton-Auflagering Teil 10b
Ausgleichsring AR-V 60 Teil 1

Beton-Schaft Teil 5c 200mm o.TragnockenNach oben
Strassenablauf
Artikel-BezeichnungLANArtikel-Nr.L
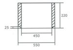
Beton-Schaft Teil 5c 200mm o.Tragnocken
DIN 4052
19640639L

Preiseinheit PE 0=1 1=10 2=100 3=1000 4=10000 ME
Alle Preise in EUR zuzüglich gesetzlicher MwSt